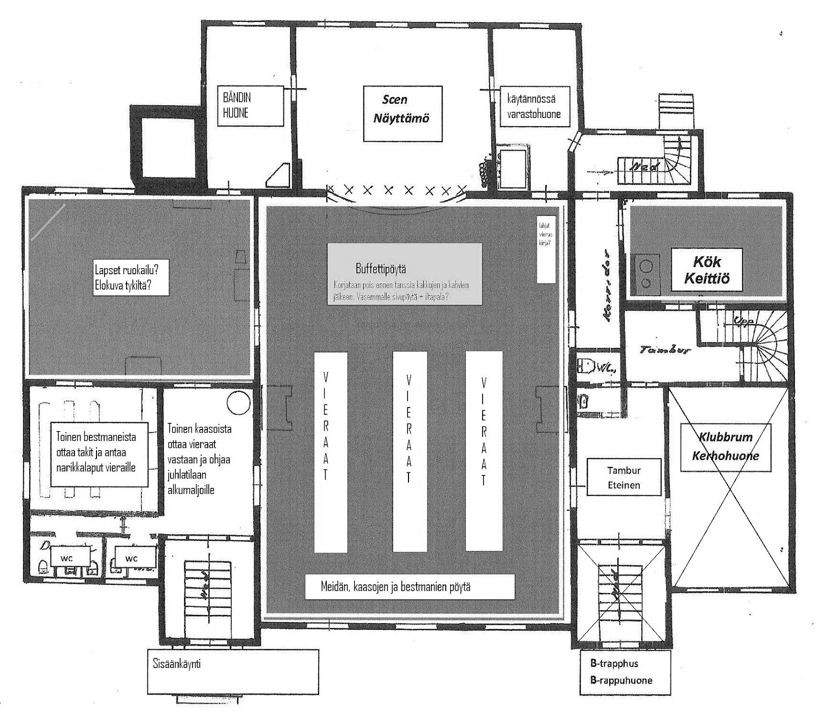
JUHLASALI

VARAUSKALENTERI >

Arkisin 9-16 +358 40 0580071
porvoonvpk.vahtimestari@gmail.com

Juhlasali

Iso sali

Keittiö

Pieni sali

Iso sali

Keittiö

Pääsisäänkäynti

Palokuntatalon Juhlasali

- Asiakasmäärä max. 200
- Keittiö
- WC
- Iso / Pieni sali
- Narikka


Juhlasalinvuokraus
porvoonvpk.vahtimestari@gmail.com

Ota yhteyttä >